|
|
 |
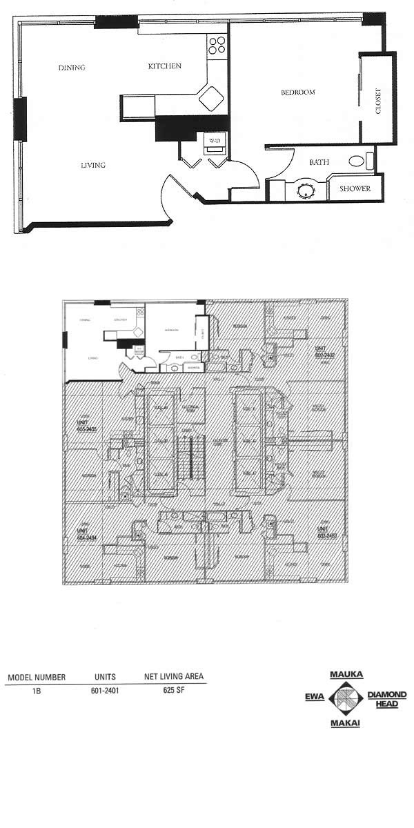
Unit# 501 in Windsor
343 Hobron - Waikiki - West
MLS#: 202528105
|
$550,000
Fee Simple
Original List Price: $550,000
Days On Market: 80
|
| Bedrooms: |
1
|
Living Area: |
662 SF
|
Parking: |
1 stall |
| Baths: |
1 Full
|
Lanai: |
221 SF
|
|
|
| Condition: |
Average
|
Total SF: |
883 SF
|
View: |
None
|
Listing Agent Remarks:
"this 1-bedroom, 1-bath residence at the windsor waikiki offers one of the building's most desirable one-bedroom floor plans. located on the 5th floor, the unit is conveniently situated near the walking path, putting green, and jacuzzi. it features a 221sf outdoor lanai, convertible into a private garden, and offers an open view with rainbows visible from the living room. fully renovated in 2004 and updated in 2014, the residence is offered fully furnished and move-in ready. free internet and cable are included. situated on the quiet western edge of waikiki, the property is close to beaches, luxury row, ala moana center, dining, and more. building amenities include a swimming pool, fitness center, library, bbq areas, parking, and ev charging stations, as well as the 45th-floor sky terrace featuring panoramic ocean and diamond head views and friday fireworks from hilton hawaiian village. the building also offers 24-hour security and is pet-friendly." -
re/max honolulu
|
| Property Taxes: |
$123 per month [Tax Info] |
| Maintenance Fees: |
$961 per month |
| Maintenance Fee pays for: |
| Maint. Fee/Interior SF: $1.45/sf |
Maint. Fee/Total SF: $1.09/sf |
Flooring: Hardwood Unit Features: Odd# Unit
Disclosures: None - Attribution Contact (808) 951-3200
Parking Features: 1 stall(s), Assigned Stall, Stalls Covered: - 1
|

|
|


















































|
|


Our specialty is helping buyers find the right condo in Honolulu, Downtown to Diamond Head, and representing their best interests.
This is not our listing and we do not represent the sellers of this property.
|